Seit Februar 2025 werden 80 Kinder im Krippen- und Kindergartenalter in der neuen Kita „Am Hanloh“ ihr neues, zweites Zuhause beziehen können. In Munster wird für sie ein neuer, lebensfroher Ort entstehen. Die rote Fassade und die spielerische Dachform schaffen einen identitätsstiftenden Ort, der die Nutzer täglich begleiten wird. Das Gebäude wird als reiner Holzbau und mit einem ausgeklügeltem Technik-Konzept realisiert und wird somit einer der nachhaltigsten Kindertagesstätten Niedersachsens sein.
Im Vordergrund unserer Planungsarbeit stand das Wohlbefinden der wichtigsten Nutzer – der Kinder. Zusätzlich dazu sollten sie sich durch die Architektur und den Ort mit der KiTa identifizieren können. Dies haben wir durch eine farbstarke Fassade und eine Dachform, die einen fröhlichen Kontrast zu der weitläufigen, idyllischen Grünfläche und zu der Umgebung schafft, erreicht.
Im Innenraum hält sich die Architektur zurück. Das gefaltete Dach ist erlebbar, aber zurückhaltend gestaltet. Wichtige Orte und Orientierungspunkte werden durch farbstarke, freie Formen gekennzeichnet.
Die Lage
Munster (Landkreis Heidekreis) ist eine Kleinstadt in Niedersachsen mit etwa 16.000 Einwohnern. Bereits seit Ende des 19. Jahrhunderts war sie ein wichtiger Standort für das Militär und ist bis heute der viertgrößte Standort der Bundeswehr.
Unsere Kindertagesstätte "Am Hanloh" liegt nordwestlich vom Stadtzentrum zwischen zweckmäßigen Wohnbauten, inmitten eines kleinen, städtischen Parks. Hier werden die Kinder zukünftig weitläufige Außenanlagen mit altem Baumbestand haben.
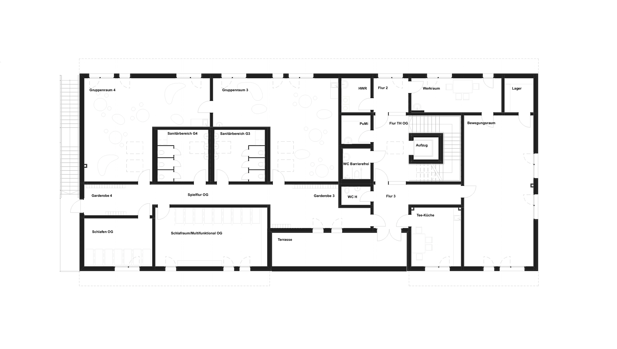
Die Funktion
Die KiTa wird insgesamt vier Gruppen für Kinder im Alter zwischen null und sechs Jahren aufnehmen. Neben diesen Clustern bestehend aus Gruppenraum, Intensiv- und Schlafraum, bietet die KiTa einen großzügigen Bewegungsraum sowie Mehrzweckräume für Werken und Musizieren. Das Programm wird abgeschlossen durch alle notwendigen Neben- und Personalräume sowie einer professionellen Küche für die frische Zubereitung der Speisen. Die 3750 m² große Außenspielfläche bietet ausgiebigen Platz zum Spielen und Toben und ermöglicht für jedes Alter ein passendes Bewegungs- und Spielangebot.
Die Nutzer der KiTa "Am Hanloh" profitieren von der nachhaltigen und auf gesundes Mikroklima bedachte Bauweise. Bauen mit Holz ist als ressourcenschonendste Konstruktionsart die Basis für “atmende” Bauten. Gemeinsam mit den Planungspartnern und dem Bauherrn audere Gesellschaftsimmobilien steigert die KiTa die Aufenthaltsqualität, indem wir soweit technisch möglich, auf Kunststoffe, Lacke und chemische Erzeugnisse verzichten.
Kooperatives Planen
In diesem Projekt haben wir frühzeitig auf eine integrale, kooperative Planung und Projektstruktur gesetzt. Neben den Fachplanungen wurden von Anfang an ausführende Firmen in die Prozesse mit einbezogen, um die höchstmögliche Qualität zu erreichen.
Bauherr | audere Gesellschaftsimmobilien GmbH |
Architektur | JOHNNY architecture 2022 |
Nutzer | Dibber Deutschland |
Investoren-Wettbewerb | 1. Platz, 2021 |
Standort | Munster, Niedersachsen |
Status | Fertiggestellt, 2025 |
Auftrag | Kooperative Planung |
Leistungen JOHNNY | Digitale Planung LP 1 – 5 Ausschreibung und Vergabe LP 6 -7 Außenanlagenplanung Architekturkommunikation |
BGF | 1.145 m² |
Bauzeit | Fertigstellung, 2025 |
Konstruktion | Holz-Elementbauweise |
CO₂-Ausstoß | 59400 kg (durch Beton) |
130 Bäume (geplant) |
Projektleiterin
Visualisierung
JOHNNY architecture
Sprechen Sie mich an:
kayla.keller@johnny-architecture.de